谢子龙影像艺术馆

湖南·长沙 2017 文化建筑

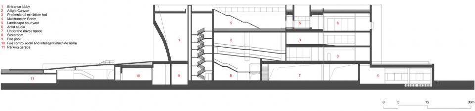
谢子龙影像艺术馆建在湘江河畔,长沙洋湖湿地公园之内。所在基地恰好处于湿地公园连接湘江风光带的视觉廊道上,是政府重点打造的市民文化艺术高地。影像馆同我们之前已经完成的湘江新区规划展示馆(2009年)、李自健美术馆(2016年)共同构成了洋湖市民的文化客厅。

在顺应建筑“自治性”的价值认知体系基础上,通过对地域类型学的持续研究与实践,探求建筑本体中的“原型”,并发现其背后的“心理图式”,加之受契里柯形而上绘画的影响,我们在当下追求浮华、表象化的社会图景下,试图寻找到形式语言背后的内在逻辑——“类型原型-深层结构-心理图式”,并将其融入到“谢子龙影像艺术馆”设计中。


湘ICP备2024081302号-1